4 e 64 y 65 1500 | FER0693

FICHA

  • Producto Departamento Monoambiente
  • Operación Venta
  • Barrio La Plata
  • Ambientes 1
  • Baños 1
  • Antigüedad 2 años
  • Estado Excelente
  • Orientación Norte
  • Disposición Contrafrente
  • Sup. Propia 38,00 m2
  • Sup. Cubierta 38,00 m2
  • Movilidad Reducida

U$S 58.000

VENTA

4 e 64 y 65 1500

La Plata

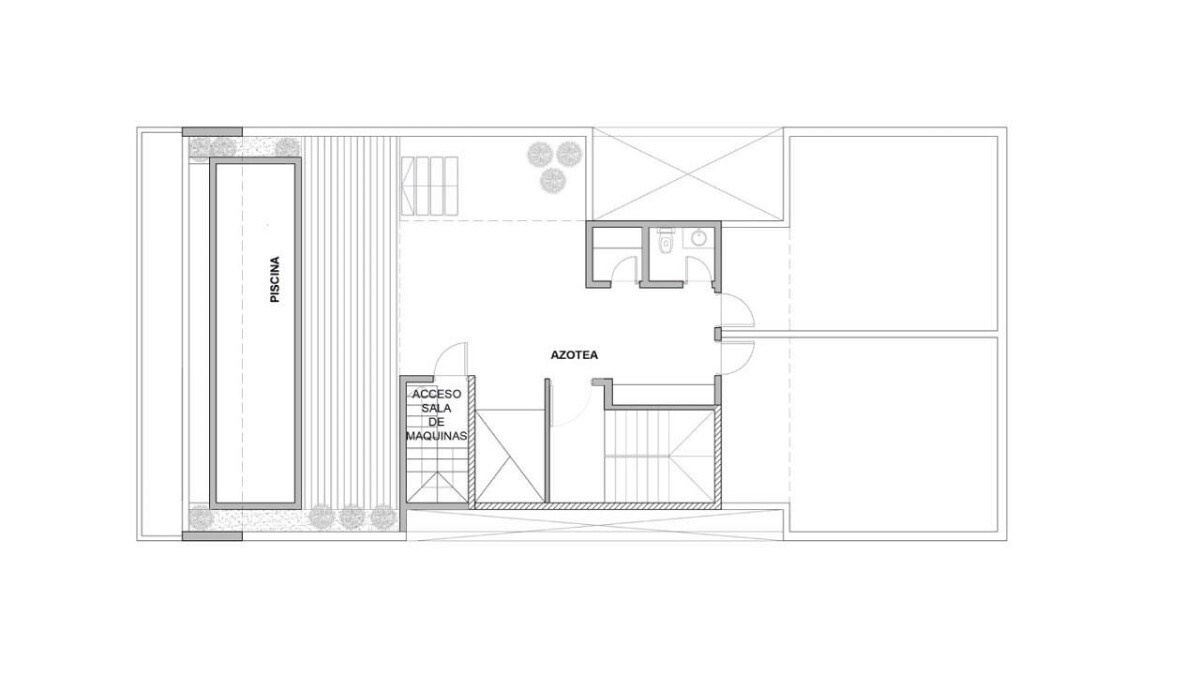
Hermoso monoambiente de categoría ubicado en 4 e 64 y 65, cuenta con 38m2 muy bien distribuidos. Posee pisos de porcelanato, cocina semi integrada, anafe a gas, venitlación natural, bacha de acero, mueble bajomesada, amplio ventanal que aporta luminosidad a todo el departamento,antebaño uy baño completo con ventilación natural, santiarios y griferías de primera línea, aire acondicionado frio/calor, cuenta con cerradura digital, cámaras de seguridad, cocheras opcionales Cuenta con climatización central radiante El edificio cuenta con amenities como terrraza con pileta climatizada y un deck con solarium


ADICIONALES

A Estrenar
Teléfono
Vista
Luz
Internet

*Las descripciones arquitectónicas, valores de expensas, impuestos o servicios, fotos y medidas de las propiedades son aproximados. Los datos fueron proporcionados por el propietario y pueden no estar actualizados a la hora de la visualización de este aviso por lo cual pueden arrojar inexactitudes o discordancias con las que surjan de los las facturas, títulos o planos legales del inmueble. Se pondrá a disposición del interesado la documentación necesaria a fin de realizar las verificaciones respectivas previamente a la realización de cualquier operación, requiriendo por sí o sus profesionales la documentación que corresponda.
*La oferta de este inmueble es a solo título informativo, pues la venta de la propiedad está supeditada a que su propietario cumplimente el trámite ante la AFIP para la obtención del N°. de C.O.T.I.

PROPIEDADES SIMILARES

DEPARTAMENTO MONOAMBIENTE

2 entre 57 y 58 1200

La Plata, G.B.A. Zona Sur, Argentina

VENTA

U$S 57.000

36,00 m2 1 Baños
DEPARTAMENTO MONOAMBIENTE

58 e/ 2 y 3 300

La Plata, G.B.A. Zona Sur, Argentina

VENTA

U$S 62.900

37,00 m2 1 Baños
DEPARTAMENTO MONOAMBIENTE

45 12 Y 13

La Plata, G.B.A. Zona Sur

VENTA

U$S 54.250

31,00 m2 1 Baños
DEPARTAMENTO

5 e 41 y 42 400

La Plata, G.B.A. Zona Sur, Argentina

VENTA

U$S 57.000

40,00 m2 1 Baños
DEPARTAMENTO MONOAMBIENTE

44 e 17 y 18 1100

La Plata, G.B.A. Zona Sur

VENTA

U$S 57.000

34,00 m2 1 Baños

CONTACTO





Solicitá tu tasación !

Nuestro compromiso es acompañarte y brindarte todo lo necesario para lograr tu objetivo.

Fernandez Berretta Juan Manuel, Colegiado: 7357 - Tasador, Corredor y Martillero Público - Colegio de Martilleros de La Plata Pcia de Bs. As.

Desarrollado por TecnoGestión Sistemas